interior design
Eng
Рус
POL
UKR
Home
About studio
PORTFOLIO
Stages of work
Cost
Contacts
Eng
Рус
POL
UKR
Home
About studio
PORTFOLIO
Stages of work
Cost
Contacts
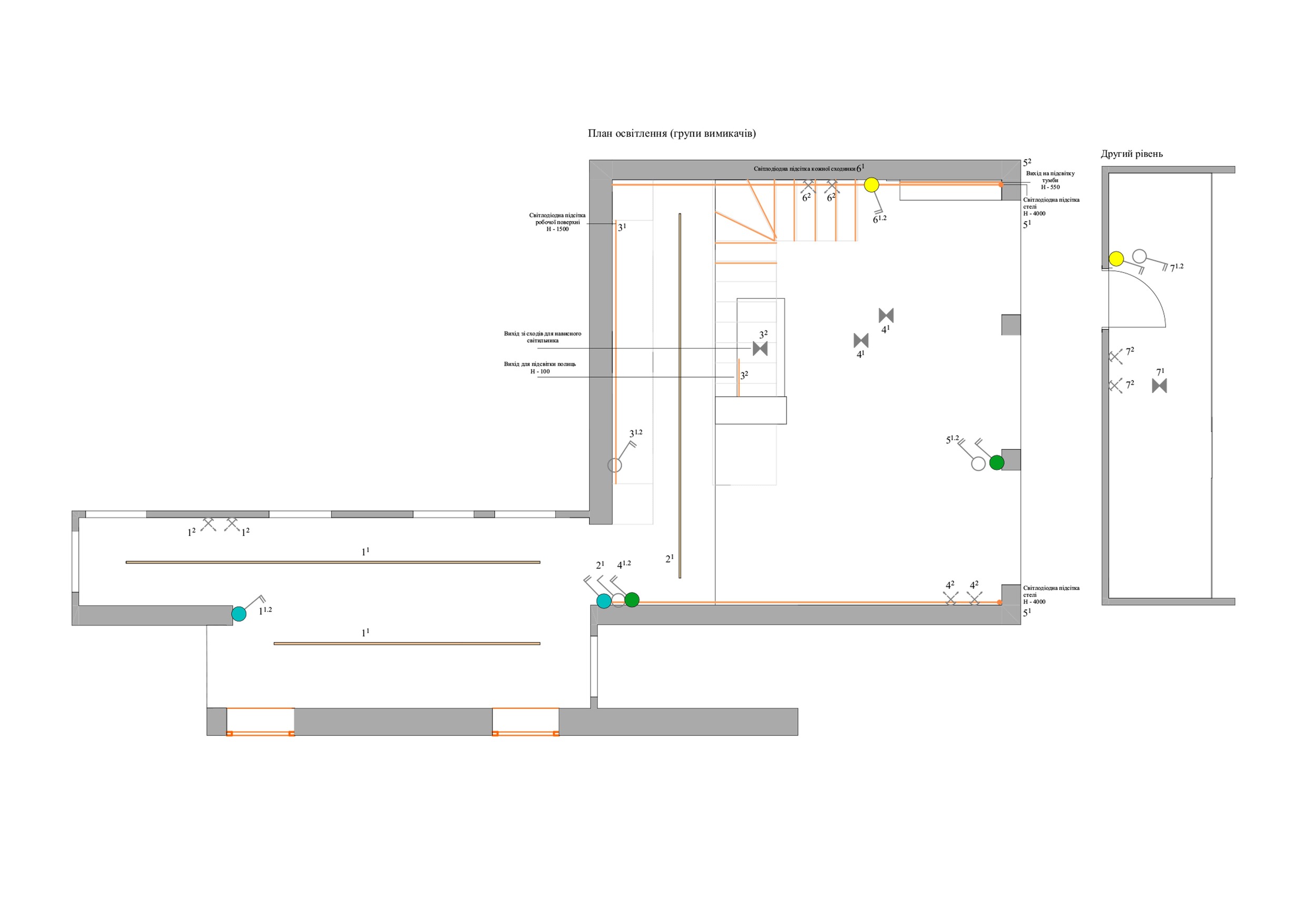
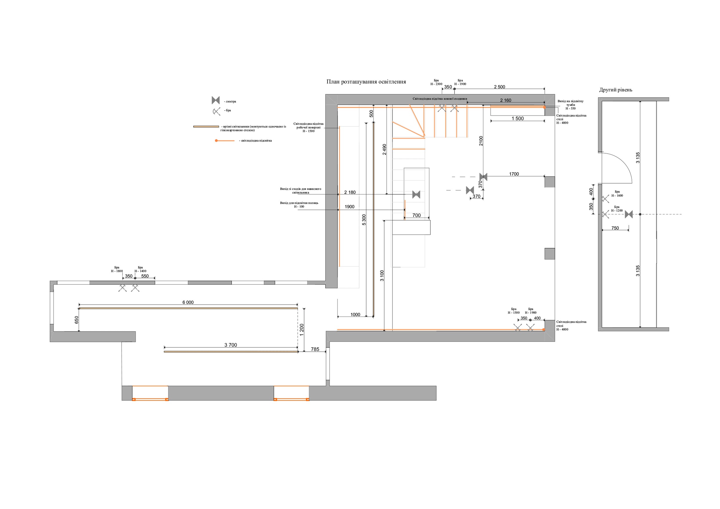
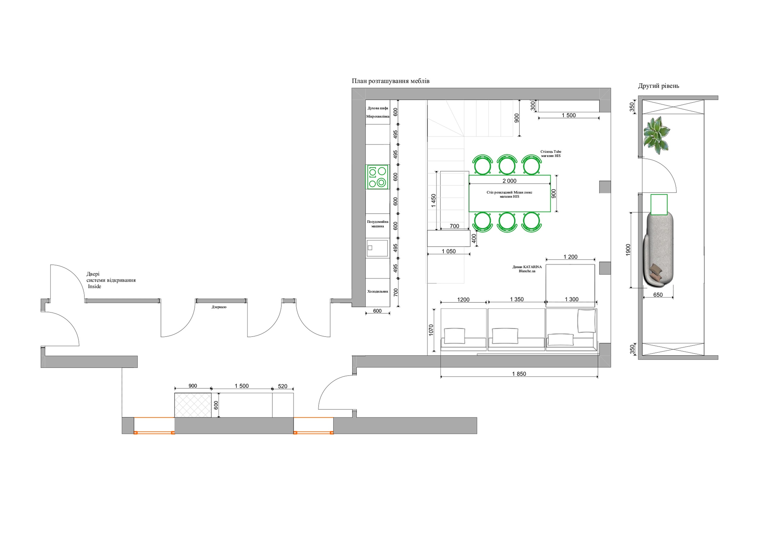
Iryna’s house
House
Apartments
Public
Completed
House Ivan+
"Wally"